Котел 2000 кВт на опилках в Коврове

Автоматический и ручной режим работы

Эффективная работа на сырых и прессованных опилках, стружке, коре влажностью до 60%, с возможностью сжигания дров в ручном режиме

Вихревой режим работы с полным догоранием топлива

Автоматизированная регулировка подачи топлива и требуемых параметров теплоносителя

Система безопасности от воспламенения топлива

Цена с НДС:
4 132 000 рублей
Цена с НДС на котел 2000 кВт на опилках с доставкой в
от 4 132 000 рублей
Условия в
В наличии на складе
Доставка ТК по России и Казахстану
Безналичный расчет
Есть в наличии
Можно купить в лизинг
Котел на опилках 2.0 МВт автоматический
Автоматический котел на опилках 2.0 МВт
Котел на опилках 2.0 МВт
Котел 2.0 МВт на опилках
Котел с автоматической подачей опилок 2 МВт
Котел 2 МВт с автоматической подачей опилок
Котел на опилках 2.0 МВт промышленный
Промышленный котел на опилках 2.0 МВт
Котел на опилках 2.0 МВт отопительный
Отопительный котел на опилках 2.0 МВт
Котел 2.0 МВт на опилках твердотопливный
Твердотопливный котел 2.0 МВт на опилках
Котел 2.0 МВт на опилке
Котел на опилке 2.0 МВт
Живое дно бункер
Бункер Живое дно
Склад механизированный Живое дно
Механизированный склад Живое дно
Котел на опилках 2.0 МВт автоматический
Котел на опилках 2.0 МВт
Котел с автоматической подачей опилок 2 МВт
Котел на опилках 2.0 МВт промышленный
Котел на опилках 2.0 МВт отопительный
Котел 2.0 МВт на опилках твердотопливный
Котел 2.0 МВт на опилке
Живое дно бункер
Склад механизированный Живое дно
Видеообзор
Вид топки Вихревая, Автоматическая
Максимальная тепловая мощность 2000 кВт
Топливо Твердое, Опилки, Древесные отходы
Отапливаемая площадь от 17000 до 22000 м²
Технические
характеристики
Описание
товара
Комплект
поставки
Дополнительное
оборудование
Монтаж и схемы
подключения
Сертификаты
и гарантии
Подбор
котла

Технические характеристики котла 2000 кВт на опилках

Вид Водогрейный
Тип отопительного котла Твердотопливный
Бренд HeatExpert
Тип Котел КВм ДО
Вид топки Вихревая, Автоматическая
Максимальная тепловая мощность 2 МВт
Максимальная тепловая мощность 2000 кВт
Максимальная тепловая мощность 1.72 Гкал
Диапазон регулирования мощности 30-100 %
Топливо Твердое, Опилки, Древесные отходы
Низшая теплота сгорания проектного топлива 2440 кКал/кг
Влажность топлива 40 %
КПД котла на ОПИЛКАХ, не менее 80 %
Расход ОПИЛОК среднечасовой за отопительный сезон 481.7 кг/ч
Расход ОПИЛОК при максимальной нагрузке котла 843 кг/ч
Расход условного топлива 294 кг/ч
Минимальная температура воды на входе в котел 55 °C
Максимальная температура воды на выходе из котла 115 °C
Давление воды, не более 0.3-0.6 (3-6) МПа (кгс/см²)
Номинальный расход теплоносителя 68 м³/ч
Расход теплоносителя через котел min-max 51-85 м³/ч
Гидравлическое сопротивление при номинальном расходе не более 0.07 (0.7) МПа (кгс/cм²)
Аэродинамическое сопротивление 200 (20) Па (мм. вод. ст.)
Разряжение в топочной камере 20-40 (2-4) Па (мм. вод. ст.)
Объем уходящих газов 9000 м³/ч
Температура уходящих газов, не более 220 °C
Тяга Уравновешенная
Водяной объем котла 1500 л
Объем топочной камеры 2.9 м³
Объем штатного бункера (насыпная плотность 650 кг/м³) 0.8 кг
Размер топочной камеры: длина*ширина*высота 950х1600х1935 мм
Присоединительные размеры по водяному тракту 125 Ду
Присоединительные размеры газохода уходящих газов, ширина*высота / сечение 1200х320 / 0.39 мм/м²
Габаритные размеры установки, длина*ширина*высота 6800х3050х2950 мм
Конструкция котла водотрубная
Количество контуров Одноконтурный
Размещение Напольный
Тип камеры сгорания Закрытый
Управление Электронное
Принцип работы твердотопливного котла Классический
Энергонезависимый Нет
Тип питания Трехфазное
Встроенный циркуляционный насос Нет
Встроенный расширительный бак Нет
Марка HeatExpert
Энергоэффективность Высокая
Отапливаемая площадь от 17000 до 22000 м²
Отапливаемый объем от 51000 до 66000 м³
Чертеж котла 2.0 МВт на опилках
Котел 2.0 МВт на опилках чертеж
Чертеж котла 2.0 МВт на опилке
Котел 2.0 МВт на опилке чертеж
Чертеж котла 2.0 МВт на опиле
Котел 2.0 МВт на опиле чертеж

Твердотопливный котел на опилках 2000 кВт в Коврове

Водогрейный котел на опилках 2000 кВт наиболее актуален для производства деревообработки – сушки древесины в сушильных камерах, также их применяют сельскохозяйственные предприятия, лесхозы, лесопилки, пилорамы, не только для технологических нужд, но и для отопления. Опилки, стружку и прочие отходы ваших технологических процессов легко можно сжечь в котле в качестве топлива, что существенно снизит ваши затраты на выработку тепла.

Твердотопливный котел на опилках мощностью 2000 кВт, нагревает воду до температуры 95 – 115 градусов при давлении теплоносителя 0,3 – 0,6 МПа, способен отопить помещение площадью 17000 – 22000 м2, объемом 51000 – 66000 м3.

Автоматический котел 2000 кВт на древесных отходах сжигает опилки и щепу размером до 100 мм, влажностью до 60%, в ручном режиме возможно сжигание досок, поленьев и крупных кусков коры и щепы.

Модельный ряд котлов на опилках 2000 кВт нашего производства

  • с плунжерной подачей;
  • с шнековой подачей.

Особенности наших котлов

  • Полностью автоматический режим работы котла – пуск, остановка, подача топлива, температурный контроль, противопожарная безопасность;
  • Эффективная работа на сырых опилках, стружке, коре;
  • Вихревой режим работы с полным выгоранием топлива;
  • Бункер защищенный от зависания топлива;
  • Ручной режим работы с загрузкой дров и крупнокусковых отходов деревопереработки.

Плунжерный котел 2000 кВт на опиле
Котел на опилках плунжерный

Котельный блок устанавливается за вихревой топкой и плотно соединяется с ней при помощи фланцев. К топке крепится два плунжерных питателя с бункером. При помощи плунжеров производится автоматизированная подача опилок в вихревую топку котла. Совершая ход назад каждый плунжер подхватывает топливо и движением вперед подает его в топку через загрузочное окно. Частота ходов (интенсивность работы) плунжера регулируется при помощи автоматики, в зависимости от характеристик топлива. Топливо попадает на огнеупорную плиту, на которой происходит его сушка и подогрев. Предварительная подсушка позволяет работать с сырыми опилками, без температурных колебаний.

Сжигание дров производится либо с переводом котла в полностью ручной режим работы, либо в качестве закладки дополнительного топлива в процессе основной работы вихревой топки. Для закладки дров в котельном блоке установлена дверца. Топливо укладывается на водоохлаждаемую решетку, где происходит его сгорание. Водоохлаждение топливной решетки защищает ее от деформации и прогорания, продлевая работу котла на длительный период.

Пожаробезопасность обеспечивают клапаны системы пожаротушения, а также приборы контроля давления в системе пожаротушения и температуры топливопровода.

Шнековый котел на опилках 2000 кВт

Котельный блок устанавливается за вихревой топкой и плотно соединяется с ней при помощи фланцев. К топке крепится шнековый питатель с бункером. При помощи блока шнековых питателей производится автоматизированная подача топлива в вихревую топку котла. С помощью автоматики вы можете легко регулировать подачу топлива, управляя скоростью вращения шнековых питателей. Топливо попадает на огнеупорную плиту, на которой происходит его сушка и подогрев. Предварительная подсушка позволяет работать с сырыми опилками, без температурных колебаний. В случае заклинивания шнека, предусмотрено автоматическое включение реверсивного движения. Для полной безопасности предусмотрено воздушное охлаждение выходного узла, препятствующее воспламенению топлива.

Пожаробезопасность обеспечивают клапаны системы пожаротушения, а также приборы контроля давления в системе пожаротушения и температуры топливопровода.

Вихревая топка с полным выгоранием топлива

Автоматический котел 2000 кВт работающий на опилках с вихревым типом горения максимально экономичен. Вихревая топка сконструирована таким образом, что все мелкие и крупные частицы топлива полностью выгорают. Воздушный поток направляет топливные частицы в центр горения. Вихрь постоянно поддерживает частицы в подвижном состоянии, не давая им спечься и налипнуть на под топки.

Опилочный котел 2000 кВт с вихревым режимом горения прекрасно подходит для сжигания очень влажных опилок, до 60 %. Пояс зажигания, который выполнен в топке, постоянно поддерживает высокую температуру, за счет чего происходит интенсивная сушка топлива, быстрое зажигание и стабильное горение.

Топка выполнена газоплотной для исключения присосов холодного воздуха и задымления в котельной.

Бункер защищённый от зависания топлива

Бункер теплогенератора на опилках 2000 кВт наполняется при помощи конвейера топлива. Особая конструкция бункера исключает сводообразование в следствии сцепления сырых опилок и облегчает разгрузку бункера.

Функциональная автоматика

Российский отопительный котел 2000 кВт на опилках и древесных отходах работает в полностью автоматическом режиме. При помощи автоматики осуществляется запуск, остановка, регулировка давления и температуры теплоносителя, подача необходимого количества воздуха, предусмотрена система пожаротушения в случае воспламенения топлива в топливопроводе. Для необходимости сжигания крупногаборитных отходов автоматика переключается в ручной режим работы.

Монтаж и комплектация

Промышленный котел на опилках 2000 кВт поставляется блоками максимальной заводской готовности, цена включает котельный блок с вихревой топкой, расходный бункер, шнековую или плунжерную автоматическую подачу, вентиляторы первичного и вторичного воздуха, воздуховоды первичного и вторичного воздуха, дымосос, предохранительные клапаны, запорная арматура в пределах котла, контрольно измерительные приборы, паспорт и инструкция по эксплуатации.

Водогрейный автоматический котел на опилках 2000 кВт последовательно по блочно: котельный блок, вихревая топка, питатели топлива с расходным бункером - устанавливается в котельной на специально подготовленную ровную поверхность и закрепляется анкерными болтами. Далее подсоединяется по воде, устанавливается запорная арматура на подводящем и отводящем трубопроводе, устанавливаются предохранительные клапаны, дренажи, воздушники и контрольно измерительные приборы. Монтируются воздуховоды первичного и вторичного воздуха, к ним присоединяются вентиляторы первичного и вторичного воздуха, монтируется газоход.

Купить котел на опилках 2000 кВт

Для того, что бы купить котел на опилках 2000 кВт с автоматической подачей в Коврове вы можете оформить заявку в отделе сбыта по телефону 8-800-700-06-43, либо оформить заявку он-лайн. Инженеры-консультанты помогут выбрать подходящие модели и котельно-вспомогательное оборудование, рассчитают стоимость доставки до вашего региона и населенного пункта. Транспортирование котлоагрегатов может осуществляться транспортными компаниями, автомобильным транспортом, железнодорожным и речным видами транспорта.

Комплект поставки котла 2000 кВт на опилках

Цена водогрейного котла 2000 кВт на опилках включает в себя запорную арматуру и КИП в пределах котла, вентилятор поддува и предохранительные клапаны. Ниже приведена подробная информация.

Дополнительное оборудование котла 2000 кВт на опилках

Для эффективной и надежной работы котла 2000 кВт на опилках вам потребуется дополнительное оборудование - автоматика, дымосос, золоуловитель, насос сетевой и подпиточный, газоходы и переходники для газового тракта, дымовая труба. Мы предлагаем рассмотреть типовые варианты комплектации. В случае если у вас на объекте имеется насосное и тягодутьевое оборудование, мы можем проверить совместимость котла 2000 кВт на опилках нашего производства и вашего оборудования. Можем изготовить нестандартные узлы для выполнения быстрого монтажа котла - газоходы и узлы обвязки. Типовую схему монтажа котла вы можете посмотреть во вкладке схемы подключения.

Автоматика котла с таймером
Автоматика котла с вихревой топкой с таймером
550000 руб. с НДС

Щит управления котлом на древесных отходах с таймером

  • регулирует теплопроизводительность установки путем поддержания равномерного поступления древесного топлива в котел;
  • поддерживает и контролирует заданную температуру теплоносителя на входе и выходе из котла;
  • включает систему пожаротушения в топливопроводе в случае аварийной ситуации.

Выполняет ручное и автоматическое управление:

  • дутьевым вентилятором первичного воздуха;
  • дутьевым вентилятором вторичного воздуха;
  • дымососом;
  • питателем топлива;
  • ворошителем.

Контролирует:

  • разряжение в топочной камере котла;
  • перегрузки привода питателя топлива по току;
  • погасания факела в топке котла;
  • падение температуры дымовых газов на выходе из котла при остывании котла;
  • повышение температуры дымовых газов на выходе из котла и перегрев дымососа;
  • опорожнение расходного бункера топлива;
  • заполнение расходного бункера топлива.

Предупреждает об аварийной ситуации при работе котла с помощью световой и звуковой сигнализации.

Автоматика котла для опилок
Автоматика котла с вихревой топкой с датчиком кислорода и частотным приводом
1800000 руб. с НДС
  • БЕЗ УЧАСТИЯ ОПЕРАТОРА ПРОИЗВОДИТ НАСТРОЙКУ ПОДАЧИ ВОЗДУХА, РАБОТУ ДЫМОСОСА И ТОПЛИВОПОДАЧИ ПОСЛЕ ЗАПУСКА КОТЛА В РАБОТУ
  • БЕЗ УЧАСТИЯ ОПЕРАТОРА НЕПРЕРЫВНО КОНТРОЛИРУЕТ И КОРРЕКТИРУТ ЭФФЕКТИВНОСТЬ СЖИГАНИЯ И РАСХОД ТОПЛИВА (ДАЖЕ В СЛУЧАЕ ИЗМЕНЕНИЯ ПАРАМЕТРОВ ТОПЛИВА (ВЛАЖНОСТЬ, ФРАКЦИЯ, КАЛОРИЙНОСТЬ)
  • БЕЗ УЧАСТИЯ ОПЕРАТОРА ВЫПОЛНЯЕТ ОСТАНОВ КОТЛА В ШТАТНОЙ И АВАРИЙНОЙ СИТУАЦИИ
  • регулирует теплопроизводительность установки;
  • поддерживает и контролирует заданную температуру теплоносителя на входе и выходе из котла;
  • осуществляет автоматическую продувку топливопровода;
  • включает систему пожаротушения в топливопроводе в случае аварийной ситуации.

Выполняет ручное и автоматическое (через частотные преобразователи) управление:

  • дутьевым вентилятором первичного воздуха;
  • дутьевым вентилятором вторичного воздуха;
  • дымососом;
  • питателем топлива;
  • ворошителем.
TD насос
Насос TD80-32G2 (11 кВт)
294100 руб. с НДС
CHL насос
Насос CHL8-30 (1.1 кВт)
97300 руб. с НДС
ДН 8 дымосос
Дымосос ДН 8/1500
217100 руб. с НДС
Золоуловитель ЗУ 2.15
Золоуловитель 2,15
95000 руб. с НДС
  • Компактный золоуловитель для твердотопливных котлов
  • Может устанавливаться как сразу за котлом, так и на улице
  • Универсальная конструкция позволяет организовать выход справа или слева, в зависимости от компоновки газоходов
ДН 9 дымосос
Дымосос ДН 9/1500
231400 руб. с НДС

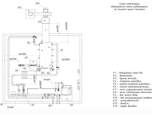
Монтаж и схемы подключения котла 2000 кВт на опилках

Водогрейный стальной отопительный котел 2000 кВт на опилках, предназначен для получения горячей воды номинальной температурой на выходе из котла от 95 до 115 °С рабочим давлением до 0,6 (6,0) МПа (кгс/см), используемой в системах централизованного теплоснабжения на нужды отопления, горячего водоснабжения. Устанавливается в производственных, промышленных и отопительных котельных.

Монтаж и подключение котла 2000 кВт на опилках

Водогрейный котел на опилках схема подключения

Водогрейный котел на опилках схема подключения

Схема подключения водогрейного котла на опилках с конвейером топливоподачи

Водогрейный котел на опилках с конвейером топливоподачи схема подключения

Водогрейный котел на опилках с конвейером топливоподачи схема подключения

Сертификаты и гарантии котла 2000 кВт на опилках

Водогрейный котел 2000 кВт на опилках имеет гарантийный срок 24 месяца. Срок работы при соблюдении правил монтажа и эксплуатации оборудования 10 лет.

Водогрейные котлы сертификат
Сертификат на водогрейные котлы
Сертификат на водогрейные котлы на газе и жидком топливе
Сертификат на водогрейные котлы на газе и жидком топливе

Подберите мощность котла для вашего объекта

Тип здания
Регион
Населенный пункт
Наружный объем здания
3)
Отапливаемый подвал
Объем подвала
3)

Отзывы о продукции

Другая похожая продукция

КВр котел 2.0 МВт
Котел КВр 2.0
Максимальная тепловая мощность, МВт 2, 2.0
Топливо Твердое, Уголь
Вид топки Ручная, Колосники
Отапливаемая площадь, м² от 16700 до 21900
1 319 000 ₽
Котел с ОУР 2.0
Котел 2.0 с ОУР
Максимальная тепловая мощность, МВт 2
Топливо Твердое, Уголь
Вид топки Ручная, ОУР
Отапливаемая площадь, м² от 16700 до 21900
1 253 000 ₽
Котел КВм 2.0 ТШПМ
Котел КВм 2.0 с ТШПМ
Максимальная тепловая мощность, МВт 2, 2.0
Топливо Твердое, Уголь
Вид топки ТШПМ, Механическая
Отапливаемая площадь, м² от 16700 до 21900
1 880 000 ₽
Котел на опилках 1.5 МВт автоматический
Котел 1.5 МВт на опилках
Максимальная тепловая мощность, МВт 1.5
Топливо Опилки, Твердое
Вид топки Вихревая, Автоматическая
Отапливаемая площадь, м² от 12500 до 16500
2 413 000 ₽
Котел на опилках 2.5 МВт автоматический
Котел 2.5 МВт на опилках
Максимальная тепловая мощность, МВт 2.5
Топливо Опилки, Древесные отходы, Твердое
Вид топки Вихревая, Автоматическая
Отапливаемая площадь, м² от 21100 до 27500
4 000 000 ₽